Shawinigan G9N5Y4
Maison de plain-pied | MLS: 16513569
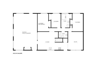
Spacieuse propriété bigénérationnelle offrant 8 chambres et 3 salles de bains complètes, parfaite pour une grande famille, un investisseur ou pour en faire une résidence. Chaque étage dispose d'espaces de vie lumineux, bien pensés et confortables, offrant intimité et polyvalence. La vaste cour arrière entièrement aménagée propose une piscine et un grand espace pour profiter des belles journées d'été. Située dans un secteur tranquille et recherché, cette propriété polyvalente se distingue par son énorme potentiel : bigénération, immeuble à revenus ou résidence principale, à vous de choisir la formule qui vous convient ! Une visite s'impose !
Inclus : Stores, Pôles et rideaux, luminaires, lave-vaisselle, laveuse sécheuse, les meubles qui resteront sur place (quelques ensembles de lit dans les chambres, table à diner et les chaises...), piscine et ses accessoires
Exclus : Luminaires de la chambre des maîtres, les tablettes dans le corridor, dans le salon, dans la chambre des maitres. Les biens et effets personnels des vendeurs.
| Chambre | Dimensions | Niveau | Revêtement |
|---|---|---|---|
| Cuisine | 12.10 x 15.2 P | Sous-sol | Céramique |
| Salon | 14.10 x 12.8 P | Rez-de-chaussée | Plancher flottant |
| Cuisine | 12.10 x 15.2 P | Sous-sol | Céramique |
| Salon | 14.10 x 12.8 P | Rez-de-chaussée | Plancher flottant |
| Salle de bains | 9.2 x 4.11 P | Sous-sol | Céramique |
| Cuisine | 25.6 x 6.1 P | Rez-de-chaussée | Plancher flottant |
| Salle de bains | 9.2 x 4.11 P | Sous-sol | Céramique |
| Cuisine | 25.6 x 6.1 P | Rez-de-chaussée | Plancher flottant |
| Salle à manger | 16.10 x 8.8 P | Rez-de-chaussée | Plancher flottant |
| Salle à manger | 16.10 x 8.8 P | Rez-de-chaussée | Plancher flottant |
| Chambre à coucher | 12.9 x 8.2 P | Sous-sol | Bois |
| Chambre à coucher | 12.9 x 8.2 P | Sous-sol | Bois |
| Salle familiale | 19.5 x 30.4 P | Rez-de-chaussée | Bois |
| Salle familiale | 19.5 x 30.4 P | Rez-de-chaussée | Bois |
| Chambre à coucher | 12.10 x 8.1 P | Sous-sol | Bois |
| Chambre à coucher | 12.10 x 8.1 P | Sous-sol | Bois |
| Chambre à coucher | 12.9 x 7.11 P | Sous-sol | Bois |
| Chambre à coucher | 14.10 x 8.11 P | Rez-de-chaussée | Bois |
| Chambre à coucher | 12.9 x 7.11 P | Sous-sol | Bois |
| Chambre à coucher | 14.10 x 8.11 P | Rez-de-chaussée | Bois |
| Chambre à coucher | 11.6 x 8.2 P | Rez-de-chaussée | Bois |
| Chambre à coucher | 11.6 x 8.2 P | Rez-de-chaussée | Bois |
| Chambre à coucher | 12.10 x 8.1 P | Sous-sol | Bois |
| Chambre à coucher | 12.10 x 8.1 P | Sous-sol | Bois |
| Chambre à coucher principale | 14.11 x 8.11 P | Rez-de-chaussée | Bois |
| Chambre à coucher principale | 14.11 x 8.11 P | Rez-de-chaussée | Bois |
| Chambre à coucher | 12.10 x 9.0 P | Sous-sol | Bois |
| Chambre à coucher | 12.10 x 9.0 P | Sous-sol | Bois |
| Salle de bains | 4.11 x 7.9 P | Rez-de-chaussée | Céramique |
| Salle de bains | 4.11 x 7.9 P | Rez-de-chaussée | Céramique |
| Salle de bains | 11.6 x 7.2 P | Rez-de-chaussée | Linoléum |
| Salle de bains | 11.6 x 7.2 P | Rez-de-chaussée | Linoléum |
| Cuisine | 12.10 x 15.2 P | Sous-sol | Céramique |
| Cuisine | 12.10 x 15.2 P | Sous-sol | Céramique |
| Salle de bains | 9.2 x 4.11 P | Sous-sol | Céramique |
| Salle de bains | 9.2 x 4.11 P | Sous-sol | Céramique |
| Chambre à coucher | 12.9 x 8.2 P | Sous-sol | Bois |
| Chambre à coucher | 12.9 x 8.2 P | Sous-sol | Bois |
| Chambre à coucher | 12.10 x 8.1 P | Sous-sol | Bois |
| Chambre à coucher | 12.10 x 8.1 P | Sous-sol | Bois |
| Chambre à coucher | 12.9 x 7.11 P | Sous-sol | Bois |
| Chambre à coucher | 12.9 x 7.11 P | Sous-sol | Bois |
| Chambre à coucher | 12.10 x 8.1 P | Sous-sol | Bois |
| Chambre à coucher | 12.10 x 8.1 P | Sous-sol | Bois |
| Chambre à coucher | 12.10 x 9.0 P | Sous-sol | Bois |
| Chambre à coucher | 12.10 x 9.0 P | Sous-sol | Bois |
| Sous-sol | 6 pieds et plus, Entrée indépendante, Totalement aménagé |
|---|---|
| Allée | Asphalte |
| Garage | Attaché, Chauffé, Simple largeur |
| Stationnement | Au garage, Extérieur |
| Particularités | Aucun voisin à l'arrière, Intergénération |
| Proximité | Autoroute/Voie rapide, Cegep, École primaire, École secondaire, Garderie/CPE, Hôpital, Parc-espace vert, Piste cyclable, Transport en commun |
| Toiture | Bardeaux d'asphalte |
| Fondation | Béton coulé, Bloc de béton |
| Fenêtres | Bois |
| Revêtements | Brique |
| Type de fenêtre | Coulissante |
| Équipement disponible | Échangeur d'air, Installation aspirateur central, Thermopompe centrale |
| Énergie pour le chauffage | Électricité |
| Piscine | Hors-terre |
| Système d'égouts | Municipal |
| Approvisionnement en eau | Municipalité |
| Mode de chauffage | Plinthes électriques |
| Zonage | Résidentiel |