Shawinigan G9T0B4
Maison à étages | MLS: 27450705
Rare opportunité au Lac des Piles : propriété détenue par un seul propriétaire, offrant une vue exceptionnelle et un accès direct au lac. Cette résidence chaleureuse propose 2 chambres à coucher et une aire de vie ouverte lumineuse avec foyer au bois, idéale pour des moments conviviaux en toute saison. La cuisine et la salle à manger s'intègrent harmonieusement à l'espace de vie. À l'extérieur, une belle terrasse avec vue sur l'eau permet de profiter pleinement du paysage et de la nature environnante. Le tout est situé sur un vaste terrain d'environ 53 744 pi², offrant calme, intimité et qualité de vie. Un véritable havre de paix à découvrir.
Inclus : Luminaires, stores, pôles et rideaux, plaque de cuisson, four encastré, laveuse et sécheuse. Tous les biens meubles qui seront sur place au moment de l'acte de vente
Exclus : Tous les biens et effets personnels de la vendeuse
| Chambre | Dimensions | Niveau | Revêtement |
|---|---|---|---|
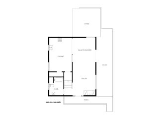
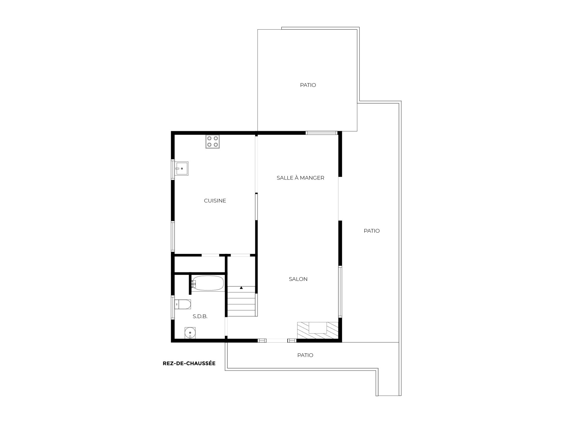
| Cuisine | 17.1 x 11.1 P | Rez-de-chaussée | Céramique |
| Cuisine | 17.1 x 11.1 P | Rez-de-chaussée | Céramique |
| Coin repas | 12.3 x 11.8 P | Rez-de-chaussée | Céramique |
| Coin repas | 12.3 x 11.8 P | Rez-de-chaussée | Céramique |
| Salon | 16.9 x 11.7 P | Rez-de-chaussée | Céramique |
| Salon | 16.9 x 11.7 P | Rez-de-chaussée | Céramique |
| Salle de bains | 7.2 x 8.11 P | Rez-de-chaussée | Céramique |
| Salle de bains | 7.2 x 8.11 P | Rez-de-chaussée | Céramique |
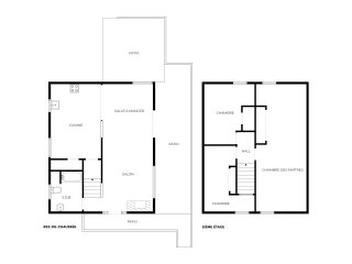
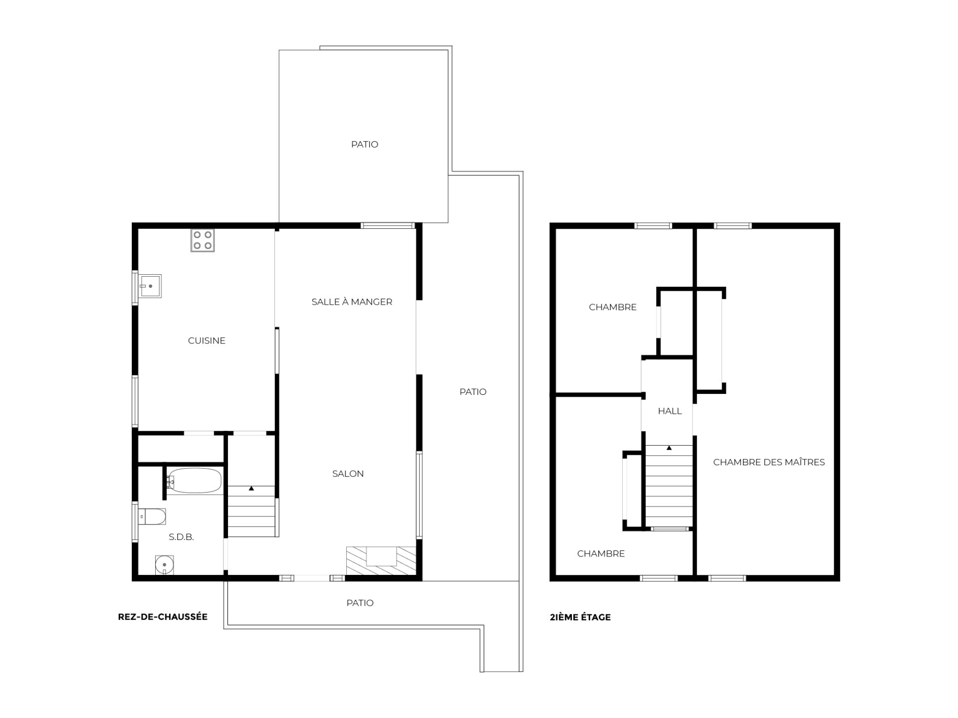
| Chambre à coucher principale | 29.1 x 11.6 P | 2ième étage | Plancher flottant |
| Chambre à coucher principale | 29.1 x 11.6 P | 2ième étage | Plancher flottant |
| Chambre à coucher | 13.7 x 11.5 P | 2ième étage | Plancher flottant |
| Chambre à coucher | 13.7 x 11.5 P | 2ième étage | Plancher flottant |
| Rangement | 15.1 x 7.3 P | 2ième étage | |
| Rangement | 15.1 x 7.3 P | 2ième étage |
| Sous-sol | 6 pieds et plus, Non aménagé |
|---|---|
| Particularités | Accès à l'eau, Aucun voisin à l'arrière, Bordé par l'eau, Navigable |
| Fondation | Béton coulé, Pierre |
| Approvisionnement en eau | Captage de source |
| Système d'égouts | Champ d'épuration, Fosse septique |
| Topographie | En pente |
| Stationnement | Extérieur |
| Foyers-poêles | Foyer au bois |
| Équipement disponible | Installation aspirateur central |
| Allée | Non pavée |
| Mode de chauffage | Plinthes électriques |
| Fenêtres | PVC |
| Zonage | Résidentiel |
| Vue | Sur l'eau |
| Toiture | Tôle |