Deschaillons-sur-Saint-Laurent G0S1G0
Maison de plain-pied | MLS: 28515819
Situé dans un beau secteur résidentiel, à seulement quelques minutes du fleuve Saint-Laurent et à proximité de tous les services! Cette propriété entretenue à merveille a tout pour plaire. En plus d'offrir la possibilité d'aménager jusqu'à 5 chambres à coucher, cette maison spacieuse et pleine de potentiel dispose d'une cour arrière à faire rêver. Parlons-en de l'extérieur. Vous apprécierez le garage d'une dimension de 55x24 offrant une foule de possibilités, ainsi que la cour joliment aménagée, parfaite pour profiter du plein air. Faites vite !
En plus de l'entretien impeccable de la maison, du très
grand garage, et de la sublime cour arrière, l'endroit vous
offre un endroit/une localisation assez stratégique :
- À 45 mins de Trois-Rivières
- À 20 mins du parc industriel de Bécancour.
- À 10 mins de l'urgence de Fortierville.
- À environ 1h10 de Québec
Inclus : Habillage des fenêtres, Tous les luminaires, Lave-vaisselle, Tablettes du salon, Armoire dans le coin du salon au sous-sol, Miroir de l'entrée et de la salle de bain du rez-de-chaussé, Pharmacie salle de bain du sous-sol, Quelques tuiles de céramique au sous-sol, Restant de bardeaux pour la maison et matériaux pour clôture dans le garage, Gazebo.
Exclus : Biens et effets personnels de la vendeuse dans la maison et dans le garage. Établi au sous-sol.
| Chambre | Dimensions | Niveau | Revêtement |
|---|---|---|---|
| Cuisine | 11.2 x 9.4 P | Rez-de-chaussée | Céramique |
| Salle à manger | 13.2 x 9.0 P | Rez-de-chaussée | Plancher flottant |
| Salle de bains | 12.10 x 5.11 P | Rez-de-chaussée | Céramique |
| Chambre à coucher | 11.1 x 8.11 P | Rez-de-chaussée | Bois |
| Chambre à coucher | 11.2 x 9.1 P | Rez-de-chaussée | Plancher flottant |
| Chambre à coucher principale | 12.11 x 11.2 P | Rez-de-chaussée | Bois |
| Salon | 17.5 x 11.2 P | Rez-de-chaussée | Bois |
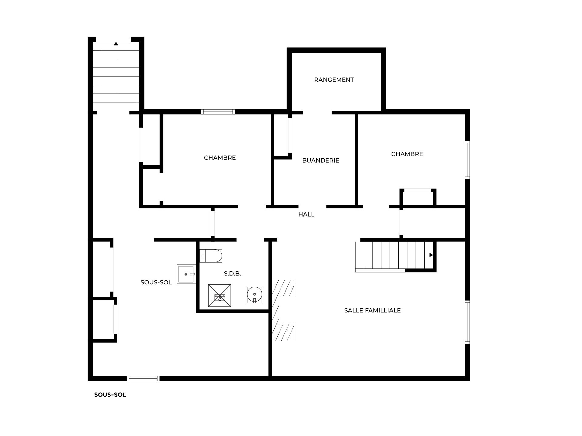
| Autre | 28.5 x 18.5 P | Sous-sol | Béton |
| Salle familiale | 13.9 x 19.4 P | Sous-sol | Parqueterie |
| Chambre à coucher | 11.0 x 9.7 P | Sous-sol | Plancher flottant |
| Salle de lavage | 9.7 x 8.0 P | Sous-sol | PVC |
| Chambre à coucher | 11.0 x 9.6 P | Sous-sol | Plancher flottant |
| Salle de bains | 7.2 x 6.2 P | Sous-sol | Céramique |
| Cave/ chambre froide | 9.2 x 5.2 P | Sous-sol | Béton |
| Sous-sol | 6 pieds et plus, Entrée indépendante, Totalement aménagé |
|---|---|
| Mode de chauffage | Air soufflé |
| Allée | Asphalte |
| Stationnement | Au garage, Extérieur |
| Toiture | Bardeaux d'asphalte |
| Fondation | Bloc de béton |
| Armoires | Bois |
| Revêtements | Brique |
| Zonage | Commercial, Résidentiel |
| Type de fenêtre | Coulissante, Manivelle |
| Garage | Détaché, Double largeur ou plus |
| Proximité | École primaire, Piste cyclable |
| Énergie pour le chauffage | Électricité |
| Équipement disponible | Installation aspirateur central |
| Système d'égouts | Municipal |
| Approvisionnement en eau | Municipalité |
| Topographie | Plat |
| Foyers-poêles | Poêle à bois |
| Fenêtres | PVC |