Saint-Barthélemy J0K1X0
Maison à étages | MLS: 16061511
Maison ancestrale à vendre à Saint-Barthélemy! Cette superbe demeure au cachet intemporel allie le charme d'autrefois et le confort d'aujourd'hui. Vous serez séduit par ses magnifiques planchers de bois, son aire de vie spacieuse et lumineuse, ainsi que ses 6 grandes chambres et ses 3 salles de bains, parfaites pour accueillir famille et invités. La propriété offre également une belle cour arrière aménagée, idéale pour les moments de détente en plein air, avec une piscine hors terre pour profiter pleinement de l'été. Une maison remplie d'histoire, chaleureuse et conviviale, qui saura charmer les amateurs d'authenticité et d'espace.
Magnifique maison ancestrale à vendre à Saint-Barthélemy,
située à proximité de tous les services de la municipalité!
Cette propriété unique marie avec élégance le charme
d'autrefois et le confort moderne. Dès votre entrée, vous
serez immédiatement séduit par le cachet exceptionnel des
lieux, mis en valeur par les boiseries et planchers
d'origine provenant du presbytère d'Youville à Montréal,
témoins d'un savoir-faire artisanal rare et intemporel.
Chaque pièce respire l'histoire, la chaleur et
l'authenticité.
L'aire de vie principale, à aire ouverte, combine
harmonieusement salon et salle à manger, créant un espace
lumineux et convivial où l'on imagine déjà de beaux moments
en famille. La chambre principale, située au
rez-de-chaussée, est un véritable havre de paix avec sa
salle de bain attenante en marbre, alliant élégance et
raffinement. Une seconde salle de bain, spacieuse et
fonctionnelle, complète cet étage pour un maximum de
confort.
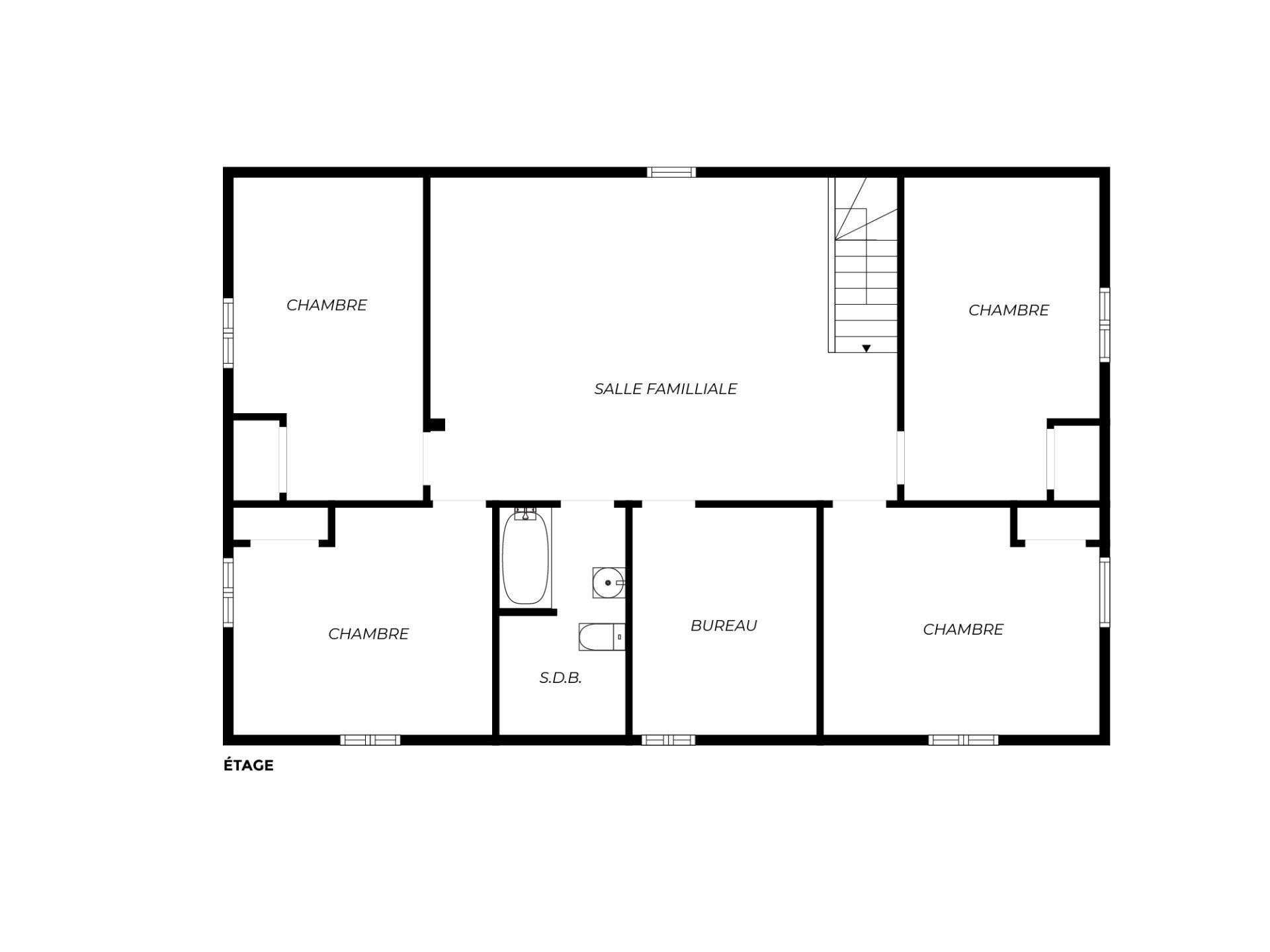
À l'étage, la maison impressionne par son vaste espace
pensé pour accueillir famille et invités. On y retrouve un
charmant boudoir pouvant servir de salon secondaire, ainsi
que cinq chambres de belles dimensions et une salle de bain
complète. Que ce soit pour une grande famille, une famille
recomposée ou simplement pour recevoir vos proches pendant
le temps des Fêtes, chacun y trouvera son espace et son
intimité.
À l'extérieur, le grand terrain paysager offre un cadre de
vie apaisant et propice à la détente. Vous y découvrirez
une piscine hors terre, un coin feu parfait pour les
soirées d'été et une panoplie de fleurs qui agrémentent les
beaux jours.
Cette demeure exceptionnelle, empreinte d'histoire et de
caractère, a su traverser les époques avec grâce. Et pour
les plus curieux, un petit secret vous attend lors de votre
visite... saurez-vous découvrir le rangement caché de la
maison?
Inclus : piscine et ses accessoires, bar à ordures, bac de recyclage, bac de composte, tout ce qui restera sur place au moment de la signature de l'acte de vente.
Exclus : Tous les biens, les accessoires et les meubles des vendeurs
| Chambre | Dimensions | Niveau | Revêtement |
|---|---|---|---|
| Salon | 24.0 x 12.5 P | Rez-de-chaussée | Bois |
| Salle à manger | 15.5 x 13.9 P | Rez-de-chaussée | Bois |
| Cuisine | 18.10 x 11.4 P | Rez-de-chaussée | Autre |
| Chambre à coucher principale | 16.3 x 10.3 P | Rez-de-chaussée | Bois |
| Salle de bains | 10.9 x 5.4 P | Rez-de-chaussée | Marbre |
| Salle de bains | 15.3 x 9.10 P | Rez-de-chaussée | Autre |
| Chambre à coucher | 15.5 x 9.10 P | 2ième étage | Autre |
| Chambre à coucher | 13.6 x 11.6 P | 2ième étage | Plancher flottant |
| Chambre à coucher | 11.5 x 9.3 P | 2ième étage | Plancher flottant |
| Chambre à coucher | 12.10 x 11.6 P | 2ième étage | Plancher flottant |
| Chambre à coucher | 13.6 x 9.2 P | 2ième étage | Plancher flottant |
| Salle de bains | 11.5 x 6.2 P | 2ième étage | Plancher flottant |
| Salle familiale | 23.5 x 15.5 P | 2ième étage | Plancher flottant |
| Mode de chauffage | Air soufflé, Plinthes électriques |
|---|---|
| Salle de bains/salle d'eau | Attenante à la chambre principale |
| Proximité | Autoroute/Voie rapide, École primaire |
| Sous-sol | Bas (moins de 6 pieds), Vide sanitaire |
| Aménagement du terrain | Clôturé |
| Énergie pour le chauffage | Électricité, Mazout |
| Stationnement | Extérieur |
| Foyers-poêles | Foyer au mazout |
| Piscine | Hors-terre |
| Type de fenêtre | Manivelle |
| Système d'égouts | Municipal |
| Approvisionnement en eau | Municipalité |
| Fondation | Pierre |
| Topographie | Plat |
| Zonage | Résidentiel |
| Toiture | Tôle |